yandexmetrikacounter
Dondurma markası Alpedo hakkındaki "ölümcül | Çanakkale Olay

Dondurma markası Alpedo hakkındaki "ölümcül bakteri" iddiası asılsız çıktı

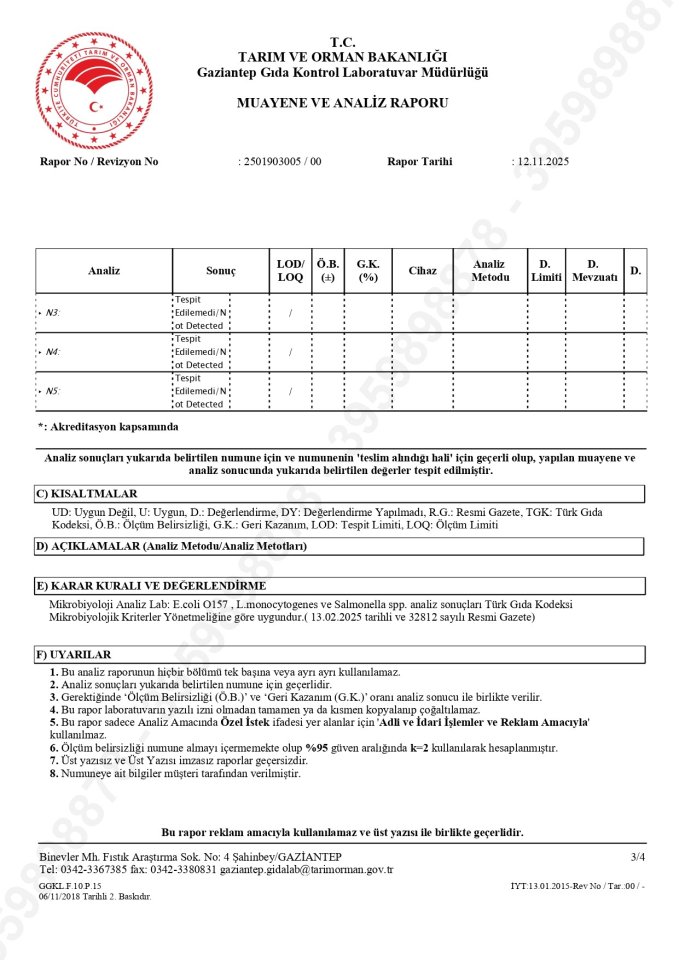
Kahramanmaraş merkezli ünlü dondurma markası Alpedo, son günlerde bazı basın organlarında yer alan "bakteri tespit edildi" iddialarıyla gündeme gelmişti. Tarım ve Orman Bakanlığı yetkilileri, konuya ilişkin yaptıkları incelemede iddiaların gerçeğini yansıtmadığını ortaya çıkardı. Firmanın ürünlerinde yapılan analizde "uygun" olduğu tespit edildi.

1592

Kahramanmaraş merkezli ünlü dondurma markası Alpedo, geçtiğimiz haftalarda akredite olmadığı öne sürülen bir laboratuvarın hatalı analiz raporlarının sızdırılmasıyla hedef haline gelmişti. Firma yetkililerinden Gıda Mühendisi İşletme Müdürü Erdoğan Bayır, söz konusu haberlerin tamamen yanlış ve yanıltıcı bilgiler içerdiğini belirterek hukuki süreci başlattı.

Markanın dondurmaları Tarım ve Orman Bakanlığı onaylı akredite laboratuvarda yeniden analiz edildi. Yapılan analizlerin sonucunda da "uygun" olduğu tespiti yapıldı. Marka analiz sonucunun kendi iç kontrolleriyle tam uyumlu olduğu açıkladı. Bakanlık tarafından yapılan yeniden inceleme sonucunda, "bakteri tespiti" iddiasının asılsız olduğu kesinlik kazandı.

Markaya olan güvenin tazelenmesiyle birlikte firma, artan siparişler nedeniyle tam kapasite üretim sistemine geçti.

(İHA)
Paylaş